8 903 411 24 03

Бесплатный звонок по РФ

Дуплекс, 130 м2, 5 сот.

, им. Р.И. Махоша ул, 43,

Объект на карте

10 600 000

0/сот.

В ипотеку 45 344 /мес

Описание
Код объекта: 1634826

Номер объекта: 1634826. ШИКАРНЫЙ ДОМ НА БЕРЕГУ Р.КУБАНЬ!​​​​​​​БОЛЬШОЙ УЧАСТОК ИЖС!​​​​​​​Строится с соблюдением всех технологий строительства согласно ГОСТ и СНИП . Есть фото и видеофиксация этапов стройки.Двор забетонирован, забор из профлиста и евроштакетника с воротами. Несколько машино мест перед домом во дворе.Отличная планировка!​​​​​​​Правильная посадка дома обеспечивает просторный двор!​​​​​​​​​​​​Хорошие подъездные пути! О ДОМЕ:​​​​​​​Строительство выполнено согласно ГОСТ и СНИП!​​​​​​​Электричество разведено по домуВодоснабжение ЦЕНТРАЛИЗОВАННОЕКанализация септик ​​​​​​​​​​​​Удачное локальное расположение объекта!Школа,детский сад,коммерция!Район активно развивается!Пишите или звоните по любым интересующим вас вопросам!​​​​​​​​​​​​​Поставьте этому объявлению ❤️, чтобы не потерять!

24-05-2026
Дом
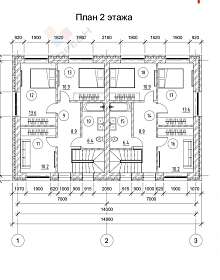
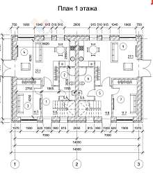
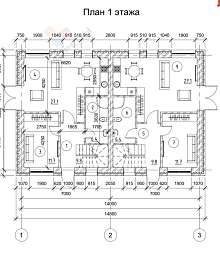
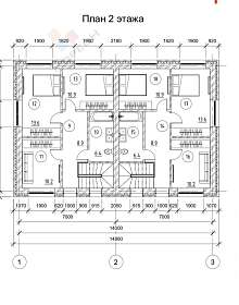
  • Тип недвижимости дуплекс
  • Площадь 130  м 2
  • Материал стен Кирпичный
  • Комнат 5
  • Этажность 2
  • Ремонт Черновая отделка
  • Отопление Электрический котел
Участок
  • Площадь участка 5  сот.
  • Фасад участка 20  м.
  • Тип участка ИЖС
  • Водоснабжение Скважина
  • Электричество Заведено
  • Канализация Биотуалет (септик)
  • Газ (линия) Да
Мещерякова Татьяна Алексеевна
+7 (928) 217 84 33
Или оставьте свой номер
и я Вам перезвоню

Купите этот объект недвижимости в ипотеку не выходя из дома