8 903 411 24 03

Бесплатный звонок по РФ

Объект продан

Свободное назначение, 675 м²

КМР , Уральская ул, 126А

Объект на карте

540 000 /мес.

8002

Описание
Код объекта: 1682907

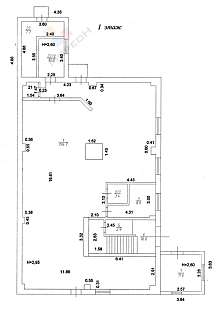
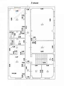
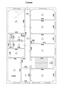
Фасадное торгово-офисное здание на улице УральскаяОбратите внимание! Сдается в аренду именно это здание, без дополнительных условий и оплат. Вся информация и фотографии актуальны. Здание с помещениями свободного назначения на одной из транспортных магистралей Краснодара. Плoщaдь: 675 кв.м. всего, в том числе: - 1 этаж: 242 м2. - свободная планировка, высота потолков 3,25 м.; - 2 этаж: 202 м2. - кабинеты, высота потолков 3,25 м.; - 3 этаж: 202 м2. - кабинеты, высота потолков 3,20 м.; - пристройки: пост охраны 11,6 м2.; хоз.блок 17.7 м2. Электроэнергия 45 кВт с возможностью увеличения; отопление газовое; центральные водоснабжение и канализация. У здания два основных входа/выхода: с улицы Уральская и с внутренней, охраняемой  территории. Кроме того, на каждом этаже есть дополнительный пожарный выход. Парковка: собственная, за шлагбаумом на 16 машин и гостевая, перед зданием на 5 машин. Собственный земельный участок 6,6 соток. Площадь застройки 305 м2. По улице Уральская проходит большой автомобильный трафик. Рядом расположены ТЦ "Галактика", СБС "Мегамолл", Ашан, ЛеманаПро Варианты использования: банк, клиника, офис, коворкинг, гостиница, представительство и т.п.Аренда БЕЗ комиссии со стороны арендатора! ​​​​​​​Звоните! Номер объекта: #5/1682907/3069

16-12-2025
Характеристики
  • Тип недвижимости Свободное назначение
  • Площадь 675  м 2
  • Материал стен Железобетон
  • Этаж 1
  • Этажей в здании 3
  • Отделка Обычный ремонт
  • Тип здания отдельно стоящее здание
  • Класс здания A
  • 1-я линия Да
  • Отдельный вход Да
Сделка
  • Тип сделки аренда
  • Есть арендатор Нет
Березин Михаил Геннадьевич
+7 (938) 433 52 74
Или оставьте свой номер
и я Вам перезвоню

Купите этот объект недвижимости в ипотеку не выходя из дома