8 903 411 24 03

Бесплатный звонок по РФ

Производство, 675 м²

ЧМР , им. Вишняковой ул, 108

Объект на карте

675 000 /мес.

1 0002

Описание
Код объекта: 1653334

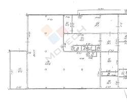
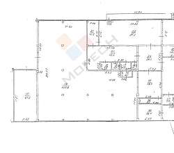
Номер объекта: 1653334. Производственно-складской комплекс в Черемушках, 675 м21 этажплощадь 675 м22 кран-балки: 1,5 и 3 тонныцентральные коммуникациивентиляцияотоплениеэл. мощность 100 кВт, с возможностью увеличениявысота потолков Н - 5 мадминистративные помещениясанузлыАренда от собственника. Без комиссии со стороны арендатора. звоните!

21-05-2026
Характеристики
  • Тип недвижимости Производственное помещение
  • Площадь 675  м 2
  • Материал стен Кирпично-Монолитный
  • Этаж 1
  • Этажей в здании 2
  • Отделка Обычный ремонт
  • Тип здания складской комплекс
  • Класс здания A
  • 1-я линия Нет
  • Отдельный вход Да
Сделка
  • Тип сделки аренда
  • Есть арендатор Нет
Гострая Елена Александровна
+7 (928) 268 57 87
Или оставьте свой номер
и я Вам перезвоню

Купите этот объект недвижимости в ипотеку не выходя из дома