8 903 411 24 03

Бесплатный звонок по РФ

Объект продан
8 700 000

1 970 000/сот.

В ипотеку 37 217 /мес

Описание
Код объекта: 1657412

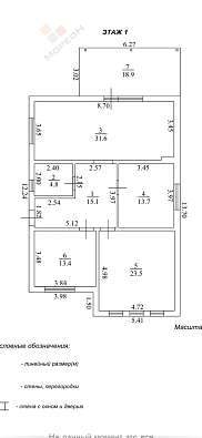
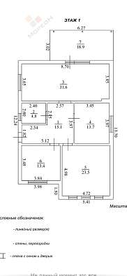
Продается уютный кирпичный дом в хорошем районе Краснодара. Общая площадь дома составляет 126,3 квадратных метров.  В доме три спальни и просторная кухня-гостиная площадью 32 квадратных метра с выходом на террасу (19 кв.м).  На участке достаточно места для парковки трёх автомобилей.  Дом имеет металлическую черепичную крышу,  и  существует возможность обустроить мансардный этаж площадью 70 квадратных метров, что значительно увеличит жилую площадь.  Все коммуникации подключены: вода, электричество, газ (подведен к границе участка).  Установлен септик объемом 12 кубометров. Улица асфальтирована и освещается, обеспечивая комфорт и безопасность.  Рассмотрим вариант покупки с использованием ипотеки.  Звоните,  с удовольствием ответим на все ваши вопросы.Номер объекта: #5/1657412/3069

12-02-2026
Дом
  • Тип недвижимости дом
  • Площадь 126.3  м 2
  • Материал стен Кирпичный
  • Комнат 3
  • Этажность 1
  • Год постройки 2024
  • Ремонт Предчистовая отделка
  • Отопление Электрический котел
Участок
  • Площадь участка 5  сот.
  • Тип участка Садовый
  • Водоснабжение Скважина
  • Электричество Заведено
  • Канализация Биотуалет (септик)
  • Газ (линия) Да
Мещерякова Татьяна Алексеевна
+7 (928) 217 84 33
Или оставьте свой номер
и я Вам перезвоню

Купите этот объект недвижимости в ипотеку не выходя из дома