8 903 411 24 03

Бесплатный звонок по РФ

Свободное назначение, 580 м²

ЦМР , Рашпилевская ул, 157

Объект на карте

580 000 /мес.

1 0002

Описание
Код объекта: 1670478

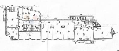
Номер объекта: 1670478. Аренда помещения свободного назначения в самом центре города - топовая локация - напротив ТЦ Галерея - аренда всего этажа - площадь 580 кв.м - кабинетная система - потолки 3 м - 2 лифта - несколько санузлов - разные планировки - 1000 р за кв.м + ком.услуги 300 р Звони !!! Без комиссии !!!

21-05-2026
Характеристики
  • Тип недвижимости Свободное назначение
  • Площадь 580  м 2
  • Материал стен Кирпично-Монолитный
  • Этаж 6
  • Этажей в здании 7
  • Отделка Офисный вариант
  • Тип здания бизнес-центр
  • Класс здания A
  • 1-я линия Нет
  • Отдельный вход Да
Сделка
  • Тип сделки аренда
  • Есть арендатор Нет

Купите этот объект недвижимости в ипотеку не выходя из дома