8 903 411 24 03

Бесплатный звонок по РФ

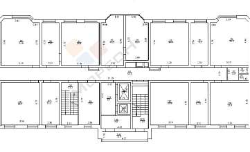
Свободное назначение, 800 м²

ККБ , Черкасская ул, 58/2

Объект на карте

1 600 000 /мес.

2 0002

Описание
Код объекта: 1656553

Пpeдлагаем в apенду помещение свободного назначения расположенное на 2 этаже 19-этажного многоквартирного дома с большим автомобильным и пешеходным трафиком.Назначение свободное, мы готовы рассмотреть ваши идеи и предложения!​​​​​​​Хорошо подойдёт под общеобразовательную, медицинскую деятельность, торговлю и  офисы, различные услуги...В помещения возможно провести электричество и водуОбщая площадь 800 кв.мОтдельный входВозможность деления на отдельные группы помещенийПри ремонте от Арендатора - *арендные каникулы или скорректируем аренду.Сделаем ремонт под Арендатора !ЗВОНИТЕ! Мы ответим на все интересующие вас вопросы и организуем оперативный показ.Номер объекта: #5/1656553/3069

10-11-2025
Характеристики
  • Тип недвижимости Свободное назначение
  • Площадь 800  м 2
  • Материал стен Кирпично-Монолитный
  • Этаж 2
  • Этажей в здании 19
  • Отделка Черновая отделка
  • Тип здания встроенное помещение
  • Класс здания A
  • 1-я линия Да
  • Отдельный вход Да
Сделка
  • Тип сделки аренда
  • Есть арендатор Нет
Смирнова Гульнара Касымовна
+7 (938) 504 39 28
Или оставьте свой номер
и я Вам перезвоню

Купите этот объект недвижимости в ипотеку не выходя из дома