8 903 411 24 03

Бесплатный звонок по РФ

Свободное назначение, 1 200 м²

, Дорожная ул, 122

Объект на карте

1 500 000 /мес.

1 2502

Описание
Код объекта: 1560519

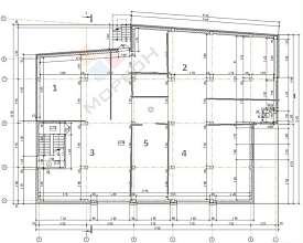
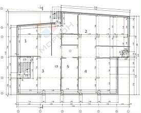
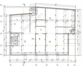
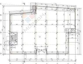
Номер объекта: 1560519. Здание с ремонтом и парковкой, 1200 м22 этажа по 600 м2с ремонтомвысота потолков: 1 эт - 4,5 м, 2 эт - 3,5 млифтпарковка на 40 машиномест3 входа/выходавитражное остеклениевысокий пешеходный и автомобильный трафикВозможность использования под любой вид деятельности представительство компании, офисы, выставочные площадки, магазины, детский центр, фитнес-центр(есть проект), СПА-центр, стоматология, медицинский центр, автосалон, шинный центр, магазин велосипедов

21-05-2026
Характеристики
  • Тип недвижимости Свободное назначение
  • Площадь 1200  м 2
  • Материал стен Кирпично-Монолитный
  • Этаж 1
  • Этажей в здании 3
  • Отделка Предчистовая отделка
  • Тип здания отдельно стоящее здание
  • 1-я линия Да
  • Отдельный вход Да
Участок
  • Площадь участка 14 сот.
  • Тип участка промназначения
Сделка
  • Тип сделки аренда
  • Есть арендатор Нет

Купите этот объект недвижимости в ипотеку не выходя из дома