8 903 411 24 03

Бесплатный звонок по РФ

Объект продан
2 132 215 /мес.

4932

Описание
Код объекта: 1635763

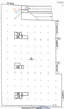
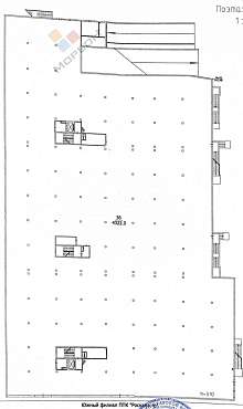
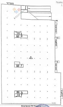
Сдается склад общей площадью 4322 м2Первый этаж жилого комплекса (стилобат)Высота 3,1 мДва въезда под а/м ГазельТри входаОтличная логистикаВозможность подключения 150 кВтЦентральные коммуникации: вода, канализацияВозможное использование:       торговое помещение       оптовая-розничная торговля       складское помещение       ремонт техники       швейное или иное производство       оборудование кладовок хранения Бонусом за небольшую плату подвал площадью 4000 м2Номер объекта: #5/1635763/3069

14-01-2026
Характеристики
  • Тип недвижимости Складское помещение
  • Площадь 4322  м 2
  • Материал стен Монолит
  • Этаж 1
  • Этажей в здании 1
  • Отделка Стяжка; штукатурка
  • Тип здания встроенное помещение
  • Класс здания A
  • 1-я линия Нет
  • Отдельный вход Да
Сделка
  • Тип сделки аренда
  • Есть арендатор Нет
Сельчанко Валентин Николаевич
+7 (928) 268 61 01
Или оставьте свой номер
и я Вам перезвоню

Купите этот объект недвижимости в ипотеку не выходя из дома