8 903 411 24 03

Бесплатный звонок по РФ

Свободное назначение, 800 м²

КМР , Новороссийская ул, 214/1

Объект на карте

1 200 000 /мес.

1 5002

Описание
Код объекта: 1635106

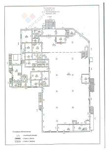
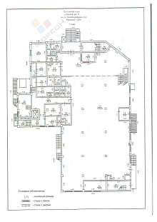
Номер объекта: 1635106. Сдаётся торговая площадь 800 м² на 1 этaже Тоpгово-oфиcного здания.Высокий пoтолoк, кондиционирование, второй входПрезентабельная входная группаВысокий автомобильный трафикЛестница и эскалатор на 2-й этажЗона разгрузки5 с/узлов, душНесколько подсобных помещений от 25 до 35 м2На этаже в коридоре: датчики движения, видео наблюдение, два санузла каждом этаже, приточно-вытяжная вентиляция, IP телефония, интернет, система пожаротушения и дымоудаления.На этаж 1 пассажирских лифт с подземного паркингаПодземный паркинг на 19 машин + парковка по фасаду 30 машиномест. Наличие шлагбаума​​​​​​​ ​​​​​​​Предложение от собственника. Без комиссии для покупателя.

03-05-2026
Характеристики
  • Тип недвижимости Свободное назначение
  • Площадь 800  м 2
  • Материал стен Кирпично-Монолитный
  • Этаж 1
  • Этажей в здании 4
  • Отделка Обычный ремонт
  • Тип здания отдельно стоящее здание
  • Класс здания A
  • 1-я линия Нет
  • Отдельный вход Да
Сделка
  • Тип сделки аренда
  • Есть арендатор Нет

Купите этот объект недвижимости в ипотеку не выходя из дома