8 903 411 24 03

Бесплатный звонок по РФ

2-комн. квартира, 71.1м², 6/16 этажей

ЮМР , Минская ул, 118/2

Объект на карте

12 400 000

174 4022

В ипотеку 53 044 /мес

Описание
Код объекта: 1693600

Номер объекта: 1693600. В продаже 2-комнатная квартира 71,1 м² — ваш новый дом в шаге от всего необходимого! Ключевые преимущества - Расположение: монолитно-кирпичный дом от застройщика «Нефтестройиндустрия-Юг», В двух шагах — гипермаркет «О'КЕЙ» и трамвайная остановка. - Простор: общая площадь 74 м², включая застеклённую лоджию 8 м². Высота потолков 3 метра — ощущение свободы и воздуха. - Комфорт: натяжные потолки, качественный ламинат, раздельный санузел в кафеле, 3 сплит-системы для идеального климата в любую погоду. - Инфраструктура дома: консьерж, 2 лифта, ухоженный подъезд.Всегда есть парковочные места. Во дворе детская и спортивная площадки. Идеально для ипотеки Один взрослый собственник, никто не прописан, квартира полностью свободна и без обременений. Документы готовы к сделке. Не упустите шанс приобрести просторную и светлую квартиру в современном доме по выгодной цене! Звоните, чтобы договориться о просмотре — звоните!

25-04-2026
Квартира
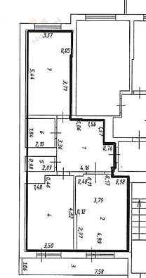
  • Комнаты 2
  • Общая площадь 71.1 м2
  • Жилая площадь 42 м2
  • Кухня 17 м2
  • Балкон/лоджия балкон
  • Отделка Обычный
  • Высота потолков 2.8 м
  • Этаж 6
  • Санузел раздельный
  • Этажность 16
  • Стены кирпичный
  • Год постройки
  • Лифт Пассажирский; Грузовой
  • Парковка Наземная
Ткачук Вячеслав Николаевич
+7 (928) 215 96 13
Или оставьте свой номер
и я Вам перезвоню

Купите этот объект недвижимости в ипотеку не выходя из дома