8 903 411 24 03

Бесплатный звонок по РФ

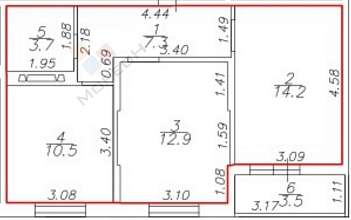
2-комн. квартира, 48.6м², 6/19 этажей

Новознаменский , им. Владимира Жириновского ул, 7

Объект на карте

4 425 000

91 0492

В ипотеку 18 929 /мес

Описание
Код объекта: 1690001

Номер объекта: 1690001. В продаже 2х комнатная квартира в сданном доме в жк "Друг" Правильная эргономика квартиры, 2 полноценные спальни, просторный коридор, сан.узел совмещен, квадратная кухня с возможностью поставить диван, выход на балкон из спальни. В квартире выполнена качественная предчистовая отделка, остается сделать ремонт на ваш вкус и ваши цветовые пожелания и предпочтения. В оформлении стен зданий используется навесной вентилируемый фасад. Во всех домах выполнена дизайнерская отделка входных групп и установлены современные скоростные лифты. На придомовой территории комплекса, спроектированной по концепции «двор без машин», расположены детские и спортивные площадки, обустроены места для отдыха. Для владельцев автомобилей предусмотрены подземный паркинг и стоянка. ЖК находится в районе Новознаменский. В пешей доступности расположены школа и детский сад. ​​​​​​​До центра Краснодара 30 минут транспортом.

21-05-2026
Квартира
  • Комнаты 2
  • Общая площадь 48.6 м2
  • Жилая площадь 27 м2
  • Кухня 11 м2
  • Балкон/лоджия балкон
  • Отделка Предчистовая отделка
  • Высота потолков 2.8 м
  • Этаж 6
  • Санузел совмещенный
  • Этажность 19
  • Стены монолит
  • Год постройки 2025
  • Лифт Пассажирский; Грузовой
  • Парковка Подземная
Модина Радмила Сергеевна
+7 (928) 247 96 26
Или оставьте свой номер
и я Вам перезвоню

Купите этот объект недвижимости в ипотеку не выходя из дома