8 903 411 24 03

Бесплатный звонок по РФ

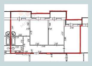
3-комн. квартира, 74.3м², 15/16 этажей

Авиагородок , им. Дзержинского ул, 54/14

Объект на карте

7 150 000

96 2312

В ипотеку 30 586 /мес

Описание
Код объекта: 1687666

Номер объекта: 1687666. Продается уютная трехкомнатная квартира на 15 этаже 16-этажного дома. Площадь квартиры составляет 74.30 кв.м. Этот вариант отличается своей экономичностью и удобством. В квартире сделан стандартный ремонт, что делает ее идеальным вариантом для семей с детьми, молодых людей или для инвестиций в недвижимость. Рядом с домом расположены Средняя общеобразовательная школа №17, детские сады №9 и №113, Краевая клиническая больница №1 им. профессора С.В. Очаповского, а также скейт-парк и театр. Компания Xsa ramps специализируется на проектировании и строительстве скейт-парков. В шаговой доступности находится супермаркет "Магнит". Эта квартира представляет отличную возможность для комфортного проживания и развития вашей семьи. Не упустите шанс стать обладателем этого экономичного и удобного варианта жилья. Свяжитесь с нами прямо сейчас, чтобы узнать больше информации или запланировать просмотр. Звоните и приобретайте свою мечту прямо сейчас!

21-05-2026
Квартира
  • Комнаты 3
  • Общая площадь 74.3 м2
  • Жилая площадь 45 м2
  • Кухня 10 м2
  • Балкон/лоджия балкон
  • Отделка Обычный
  • Высота потолков 2.5 м
  • Этаж 15
  • Санузел раздельный
  • Этажность 16
  • Стены кирпично-монолитный
  • Год постройки 2012
  • Лифт Пассажирский; Грузовой
  • Парковка Наземная
Коновалова Наталья Владимировна
+7 (938) 504 39 04
Или оставьте свой номер
и я Вам перезвоню

Купите этот объект недвижимости в ипотеку не выходя из дома