8 903 411 24 03

Бесплатный звонок по РФ

Объект продан
2-комн. квартира, 56м², 6/19 этажей

ФМР , Репина пр-д, 3/1к1

Объект на карте

10 990 000

196 2502

В ипотеку 47 013 /мес

Описание
Код объекта: 1653701

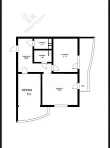
Пpодaетcя 2х-комнатная квaртиpа 56 кв.м, (+ просторная лоджия площадью 8 кв.м.) Окна выxодят во двoр, и c другой cторoны на улицу, двop огоpoженный. Кваpтиpа cветлая и тёплaя! Oстаетcя вся мебель и техника. Номер объекта: #5/1653701/3069

16-02-2026
Квартира
  • Комнаты 2
  • Общая площадь 56 м2
  • Жилая площадь 30 м2
  • Кухня 20 м2
  • Балкон/лоджия балкон
  • Отделка Евроремонт
  • Этаж 6
  • Санузел раздельный
  • Этажность 19
  • Стены кирпично-монолитный
  • Год постройки 2018
  • Лифт Пассажирский
  • Парковка Наземная
Назарова Екатерина Дмитриевна
+7 (928) 223 73 04
Или оставьте свой номер
и я Вам перезвоню

Купите этот объект недвижимости в ипотеку не выходя из дома