8 903 411 24 03

Бесплатный звонок по РФ

3-комн. квартира, 92.7м², 2/3 этажей

, Первомайская ул, 4Ак5

Объект на карте

10 800 000

116 5052

В ипотеку 46 200 /мес

Описание
Код объекта: 1652496

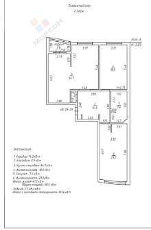
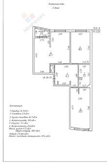
Номер объекта: 1652496. Продается просторная квартира . Площадь- 92.7 квм. Большая кухня- 34.7 кв м .
Дом полностью из кирпича ,теплый . Уютные, широкие  дворы, с площадками и прогулочными зонами. Закрытая территория.
В шаговой доступности новая школа и детское дошкольное учреждение.
Пятерочка, аптека. Поликлиника. Остановка общественного транспорта. 
Идеальное место для проживания .
​​​​​​​Документы готовы к продаже.

21-05-2026
Квартира
  • Комнаты 3
  • Общая площадь 92.7 м2
  • Жилая площадь 45 м2
  • Кухня 35 м2
  • Балкон/лоджия балкон
  • Отделка Предчистовая отделка
  • Высота потолков 2.8 м
  • Этаж 2
  • Санузел совмещенный
  • Этажность 3
  • Стены кирпичный
  • Год постройки 2018
  • Лифт нет
  • Парковка Наземная
Цаплева Ольга Тимофеевна
+7 (928) 036 50 13
Или оставьте свой номер
и я Вам перезвоню

Купите этот объект недвижимости в ипотеку не выходя из дома