8 903 411 24 03

Бесплатный звонок по РФ

Объект продан
3-комн. квартира, 97.9м², 3/5 этажей

ПМР , улица Евдокии Бершанской, 408/1

Объект на карте

9 100 000

92 9522

В ипотеку 38 928 /мес

Описание
Код объекта: 1648981

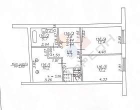
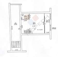
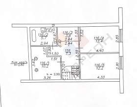
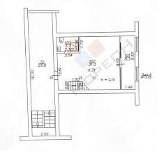
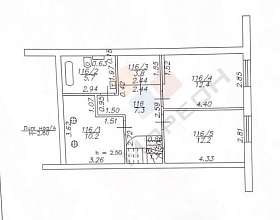
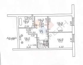
Номер объекта: 1648981. Продается уютная  трехкомнатная квартира , в двух уровнях. Квартира располагается на 
третьем и четвертом этаже кирпичного дома - идеальное предложение для тех, кому важен комфорт и удобство.  Площадь  97.90 кв.м. она предлагает просторное пространство для вашего комфорта. В квартире выполнен  дизайнерский ремонт, который придаст вашему жилью индивидуальность. Отличное сочетание цена-качество делают этот вариант особенно привлекательным как для молодых людей, так и для семей с детьми или пожилых родственников.
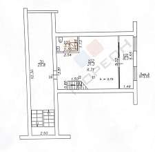
На первом этаже холл 25 кв.м.,  кухонная зона 32 кв.м. с выходом на лоджию 8 кв.м. и двумя световыми зонами, уборная, душевая кабина с эффектом сауны. Второй этаж холл 7 кв.м., две спальни 12 кв.м., кабинет 10 кв.м., гардеробная 4 кв.м, уборная, ванная комната 6 кв.м. 
​​​​​​​ Особенно хочется отметить месторасположение дома. Тихий и  уютный двор, спокойная атмосфера. В непосредственной близости находятся школы и садики ,супермаркеты, торговые центры, магазины.   Не упустите свой шанс стать счастливым обладателем этой уникальной квартиры! Звоните прямо сейчас и мы организуем для вас просмотр объекта на удобное для вас время. Вложите свои средства в недвижимость и обеспечьте себе комфортное будущее! С уважением Наталья.

17-04-2026
Квартира
  • Комнаты 3
  • Общая площадь 97.9 м2
  • Жилая площадь 47 м2
  • Кухня 35 м2
  • Балкон/лоджия лоджия
  • Отделка Евроремонт
  • Высота потолков 2.8 м
  • Этаж 3
  • Санузел совмещенный
  • Этажность 5
  • Стены кирпичный
  • Год постройки
  • Лифт Пассажирский; Грузовой
Назарова Екатерина Дмитриевна
+7 (928) 223 73 04
Или оставьте свой номер
и я Вам перезвоню

Купите этот объект недвижимости в ипотеку не выходя из дома