8 903 411 24 03

Бесплатный звонок по РФ

2-комн. квартира, 57.7м², 7/16 этажей

Новознаменский , им. Владимира Жириновского ул, 1к3

Объект на карте

6 000 000

103 9862

В ипотеку 25 667 /мес

Описание
Код объекта: 1647024

Номер объекта: 1647024. Продается 2 комнатная квартира в ЖК "Смородина". Прекрасная планировка, просторная кухня, раздельный сан узел. Комфортный двор со спортивной и детской площадкой, во дворе множество коммерческих помещений, которые заполняются предприятиями сферы услуг, открылся Магнит и Магнит Косметик.

24-05-2026
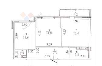
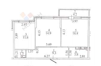
Квартира
  • Комнаты 2
  • Общая площадь 57.7 м2
  • Жилая площадь 29 м2
  • Кухня 16 м2
  • Балкон/лоджия балкон
  • Отделка Предчистовая отделка
  • Высота потолков 2.8 м
  • Этаж 7
  • Санузел раздельный
  • Этажность 16
  • Стены кирпично-монолитный
  • Год постройки
  • Лифт Пассажирский; Грузовой
  • Парковка Наземная
Кириленко Евгений Викторович
+7 (928) 248 03 92
Или оставьте свой номер
и я Вам перезвоню

Купите этот объект недвижимости в ипотеку не выходя из дома