8 903 411 24 03

Бесплатный звонок по РФ

2-комн. квартира, 49м², 6/6 этажей

Российский п , Куликова Поля ул, 5

Объект на карте

4 700 000

95 9182

В ипотеку 20 106 /мес

Описание
Код объекта: 1560616

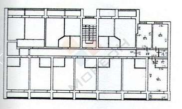
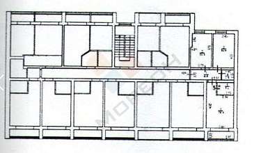
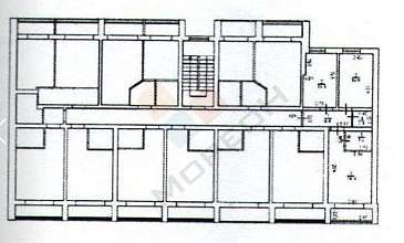
Номер объекта: 1560616. Продаётся просторная 2-х комнатная квартира площадью 49 м2 в кирпичном доме, год постройки -2014 (право собственности зарегистрировано). Развитая инфраструктура: школа, детские сады, магазины, аптеки, до остановки маршруток- 50 метров. Маршрутные автобусы в любую часть города (36,42,48,51,1) Рядом новая школа. Дороги и подъездные пути -асфальт. Один собственник. В квартире никто не проживал. Квартира на шестом этаже шестиэтажного кирпичного дома. Есть возможность присоединить мансардный этаж (+/- 25 кв м). Квартира: комнаты изолированные (раздельные), планировка-бабочка (на две стороны), санузел раздельный, окна выходят на южную и северную сторону, в гостиной витражное окно, просторная лоджия с витражными окнами, объединена с гостиной, черновая отделка (отштукатурены стены), без лифта. Есть возможность туалет использовать под гардероб, а ванну объединить с туалетом. Кухня-гостиная , комнаты, лоджия объединена с кухней, витражные окна 3 кв.м. туалет 2 кв.м. ванна 2,9 кв.м. Большая придомовая территория, двор закрытый, с парковкой, на доме установлено видео наблюдения. Вода и канализация, электричество заведены в дом, подключены. Дом сдан и заселён. Прописка городская. Показ квартиры будет произведён оперативно. Звоните , пишите !

19-04-2026
Квартира
  • Комнаты 2
  • Общая площадь 49 м2
  • Жилая площадь 32 м2
  • Кухня 12 м2
  • Балкон/лоджия лоджия
  • Отделка Черновая отделка
  • Высота потолков 2.75 м
  • Этаж 6
  • Санузел совмещенный
  • Этажность 6
  • Стены кирпичный
  • Год постройки 2014
  • Лифт нет
  • Парковка Наземная
Назарова Екатерина Дмитриевна
+7 (928) 223 73 04
Или оставьте свой номер
и я Вам перезвоню

Купите этот объект недвижимости в ипотеку не выходя из дома