8 903 411 24 03

Бесплатный звонок по РФ

Объект продан

Дом, 138 м2, 8 сот.

, переулок Прудовый, 28,

Объект на карте

8 000 000

0/сот.

В ипотеку 34 222 /мес

Описание
Код объекта: 1684859

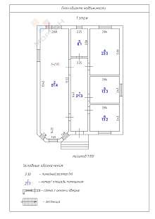
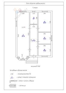
У вас есть уникальная возможность приобрести просторный дом площадью 138 м2 в г. Майкоп, расположенный на земельном участке 7,66 соток. Дом: Одноэтажный, в предчистовой отделке, что позволит воплотить в жизнь любую дизайнерскую фантазию. Предусмотрен выход на террасу (есть возможность постройки по вашим размерам). Дом построен на ленточном фундаменте, стены из мелких бетонных блоков, утеплен и обложен кирпичом. Электрика разведена. Газ, свет, вода по меже (заявки на подключение поданы). Земельный участок назначение ИЖС находится в собственности. Три изолированные комнаты - идеальный вариант для большой семьи и для людей ценящих личное пространство. Просторная кухня- гостинная (51 м2) позволит проводить семейные праздники в большой компании. Большой с/у. Дом находится в р-не Инфекционной больницы, это часть города с развитой инфраструктурой, где есть школы, детские сады, магазины и аптеки. Все для жизни уже есть. Городская прописка Майкопа. Остановки общественного транспорта в 5-7 минут ходьбы. Звоните, организуем показ в удобное время. Номер объекта: #5/1684859/3069

13-04-2026
Дом
  • Тип недвижимости дом
  • Площадь 138  м 2
  • Материал стен Блочный
  • Комнат 3
  • Этажность 1
  • Год постройки 2025
  • Ремонт Предчистовая отделка
  • Отопление Газовое
Участок
  • Площадь участка 8  сот.
  • Тип участка ИЖС
  • Водоснабжение Централизованный
  • Электричество Столб около участка
  • Канализация Биотуалет (септик)
  • Газ (линия) Да

Купите этот объект недвижимости в ипотеку не выходя из дома