8 903 411 24 03

Бесплатный звонок по РФ

Дом, 220 м2, 6 сот.

Северный мкр , Рябиновая ул, Пасхальная 23,

Объект на карте

25 500 000

4 750 000/сот.

В ипотеку 109 083 /мес

Описание
Код объекта: 1682730

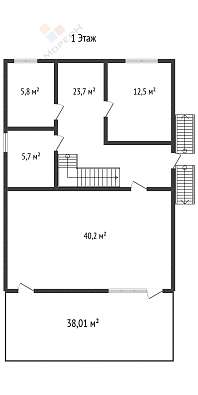
Номер объекта: 1682730. Продается двухэтажный дoм 220,2 м2 с террасой и чердаком нa зeмельном учacткe 6 coтoк. В домe 4 спaльни в предчистовой отделке, террасса,чердак, хоз помещения. Выполнена вся инженерия, 2с/у, котельная под ключ. Теплые полы, сплиты, 15 кВт, скважина, септик, газ заведён в дом. Тихий район, респектабельные соседи, недалеко от немецкой деревни, пешком детский сад и школа. В ближайшей перспективе будет термальный комплекс шаговой доступности. Район активно развивается — расширение Западного обхода и новая трамвайная ветка гарантируют рост стоимости вашей недвижимости. Дом строился для себя, качественно с соблюдением всех норм и правил. Идеально для большой семьи! Открытая продажа. Показ в любое время. Возможен разумный торг.

24-05-2026
Дом
  • Тип недвижимости дом
  • Площадь 220.2  м 2
  • Материал стен Кирпичный
  • Комнат 4
  • Этажность 2
  • Год постройки 2024
  • Ремонт Частичный ремонт
  • Отопление Газовое
Участок
  • Площадь участка 6  сот.
  • Тип участка ИЖС
  • Водоснабжение Скважина
  • Электричество Разведен по дому
  • Канализация Биотуалет (септик)
  • Газ (линия) Да
Антонюк Александр Анатольевич
+7 (928) 209 37 86
Или оставьте свой номер
и я Вам перезвоню

Купите этот объект недвижимости в ипотеку не выходя из дома