8 903 411 24 03

Бесплатный звонок по РФ

23 900 000

6 225 000/сот.

В ипотеку 102 239 /мес

Описание
Код объекта: 1666098

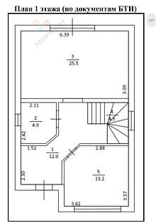
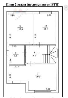
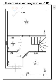
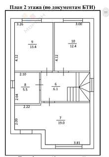
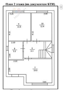
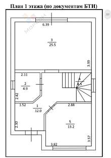
Ваш идеальный семейный дом в тихом и престижном районе!Просторный двухэтажный дом с дизайнерским ремонтом и готовым ландшафтным проектом — место, где ваша семья обретет комфорт и уют!О доме: Год постройки: 2023, монолит-кирпич — надежно и тепло 1 этаж: светлая кухня-гостиная, гостевая комната (или кабинет), санузел с душевой, подсобка 2 этаж: три уютные спальни, санузел с ванной, выход на чердак Теплый пол во всем доме, кондиционеры в каждой комнате Встроенная мебель и техника — заезжайте и живите!Участок и двор: Подогреваемый бассейн — отдых и удовольствие круглый год Парковка на два авто, место под беседку, баню, газоны Видеонаблюдение — безопасность вашей семьиИнфраструктура: КП "Тихая Поляна" (район Немецкой деревни) — престижно и спокойно Магазины в шаговой доступности: "Пятерочка", "Валдберис", Ozon, КБ До школы и садика — 5 минут на авто Коммуникации: Газ, септик, скважина — все для комфортной жизниЭто не просто дом — это место, где рождаются счастливые воспоминания!Звоните прямо сейчас — подарите своей семье дом мечты!Номер объекта: #5/1666098/3069

12-03-2026
Дом
  • Тип недвижимости дом
  • Площадь 130  м 2
  • Материал стен Кирпичный
  • Комнат 4
  • Этажность 2
  • Год постройки 2023
  • Ремонт Обычный
  • Отопление Газовое
Участок
  • Площадь участка 4  сот.
  • Фасад участка 11  м.
  • Тип участка ИЖС
  • Водоснабжение Скважина
  • Электричество Заведено
  • Канализация Биотуалет (септик)
  • Газ (линия) Да
Ли Евгений Сергеевич
+7 (928) 241 78 51
Или оставьте свой номер
и я Вам перезвоню

Купите этот объект недвижимости в ипотеку не выходя из дома