8 903 411 24 03

Бесплатный звонок по РФ

Объект продан

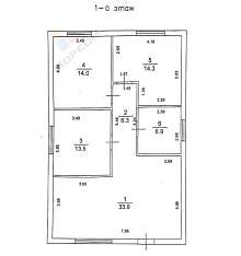
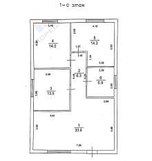
Дом, 89 м2, 6 сот.

, Шапсугское шоссе ул, 3,

Объект на карте

6 700 000

0/сот.

В ипотеку 28 661 /мес

Описание
Код объекта: 1664929

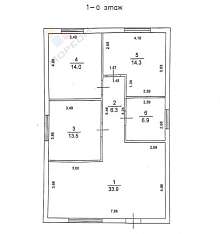
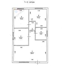
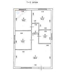
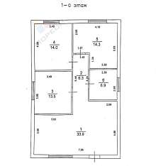
Продается одноэтажный дом с тремя комнатами . Общая площадь 88,9 квадратных метров. Этот дом идеально подойдет для тех, кому важен комфорт и удобство. В настоящее время в доме проведена чистовая отделка Это отличное сочетание цены и качества, которое позволит новым владельцам воплотить свои дизайнерские идеи и создать уютное пространство по своему вкусу. Газ по меже (подключение стоит 200 000р), электричество и вода заведены в дом. Участок 6 соток, ровный и сухой. Данный дом идеально подойдет для семей с детьми, так как здесь есть достаточно места для игр и развлечений, а также для родителей или пожилых родственников, которым будет удобно находиться на одном уровне без лишних лестниц и ступенек. Что касается местоположения: х. Хомуты развитый населенный пункт, есть все , что необходимо для жизни. Школа, детский сад, магазины, аптеки, все в пешей доступности. Остановка общественного транспорта в 5 минутах от дома, 3 автобуса и маршрутное такси, без труда позволят добраться до нужного вам местоположения. Если вы планируете приобрести дом в кредит, то это предложение также вас заинтересует, так как семейная и сельская ипотеки подходят для приобретения данного объекта (в ипотеку цена на 300 000 рублей дороже). Кроме того, воспользоваться материнским капиталом также можно при покупке этого дома.Не упустите возможность стать счастливым обладателем уютного и функционального дома, который станет идеальным местом для вашей семьи. Номер объекта: #5/1664929/3069

31-01-2026
Дом
  • Тип недвижимости дом
  • Площадь 88.9  м 2
  • Материал стен Кирпичный
  • Комнат 3
  • Этажность 1
  • Год постройки 2024
  • Ремонт Предчистовая отделка
  • Отопление Газовое
Участок
  • Площадь участка 6  сот.
  • Фасад участка 25  м.
  • Тип участка Садовый
  • Водоснабжение Скважина
  • Электричество Заведено
  • Канализация Биотуалет (септик)
  • Газ (линия) Да

Купите этот объект недвижимости в ипотеку не выходя из дома