8 903 411 24 03

Бесплатный звонок по РФ

55 000 000

0/сот.

В ипотеку 235 278 /мес

Описание
Код объекта: 1656292

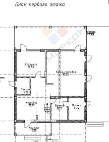
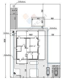
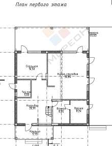
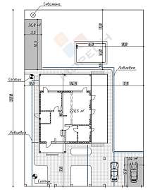
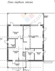
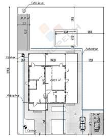
Продается дизайнерский, трёхэтажный дом в районе Немецкая Деревня. Хорошо развитая инфраструктура, безопасный и удобный район. В шаговой доступности: муниципальный сад № 64, 3 частных д/сада, школа № 99, частная школа «Центр роста». «Город спорта» со спорткомплексами федерального уровня в 15 мин на машине. В центр Краснодара - каждые 10 мин ходят автобусы и маршрутки. Так же есть клиника Амадеус в центре Немецкой деревни и клиника Екатерининская на машине 15 мин.При строительстве дома использовались современные материалы (имеется фото всех этапов строительства). Дом построен на свайно-ростверковом основании, сверху армированная плита, стены утеплены пеноплексом. Все коммуникации находятся под землей, в том числе и газ.Выполнен качественный, дизайнерский ремонт, весь дом в едином стиле, смотрится гармонично и красиво. На первом этаже: просторная прихожая; кухня-гостиная с выходом на террасу (остается кухня фирмы «Мария» с гарантией 25 лет, столешница из искусственного камня, и техникой Bosh); прачечная, с/узел; гостевая комната с выходом на террасу. На втором этаже: большой с/узел; спальня с выходом на балкон; тренажерный зал. На третьем этаже: большой с/узел; комната для игр (сейчас стоит теннисный стол, но можно поставить и бильярд) с выходом на балкон; две спальни, одна из них имеет выход на балкон.Террасы и балконы площадью 120 м2 с ограждением из стекла и нержавеющей стали. Зал со вторым светом, высота потолка 7 метров с 6 панорамными окнами. Окна в доме трехкамерные и энергосберегающие.Котел фирмы «Buderus», циркуляционные насосы фирмы «Grandfos», трубы фирмы «Stout». Вода - скважина с колонной системой фильтрации в дом и на полив участка (на воду имеются анализы соответствия). Смесители фирмы «grohe» и «hansgrohe» с терморегуляторами, во всем доме 2 контура отопления, тёплые полы, батареи с регулятором температуры. Кондиционеры установлены во всех комнатах, так же в каждой комнате установлена приточка воздуха бризеры «Ballu».По периметру автоматическое освещение, видео наблюдение, система охраны дома. На участке высажено 36 купрессоцепариса высотой более 3 метров (быстро растут и становятся живой изгородью), голубая ель высотой 5 метров, плодовые деревья с системой автополива.Бассейн размер 6 х 3 с системой подогрева, фильтрации и автоматической дозировки химии, с подсветкой 7 цветов. Отдельно стоящая баня 30 м2, котел на дровах фирмы «Harvia». Гараж 6 х 4 и навес 6 х 4 с автоматическими роллворотами фирмы «Alutech».Номер объекта: #5/1656292/3069

14-04-2026
Дом
  • Тип недвижимости дом
  • Площадь 269.8  м 2
  • Материал стен Монолит
  • Комнат 6
  • Этажность 3
  • Год постройки 2021
  • Ремонт Дизайнерский проект
  • Отопление Газовое
Участок
  • Площадь участка 10  сот.
  • Фасад участка 25  м.
  • Тип участка ИЖС
  • Водоснабжение Скважина
  • Электричество Заведено
  • Канализация Биотуалет (септик)
  • Газ (линия) Да
Угринова Ирина Викторовна
+7 (928) 283 14 62
Или оставьте свой номер
и я Вам перезвоню

Купите этот объект недвижимости в ипотеку не выходя из дома