8 903 411 24 03

Бесплатный звонок по РФ

Объект продан

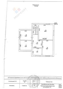
Дом, 237 м2, 7 сот.

Новознаменский , Богатырская ул (Новознаменский п), 98,

Объект на карте

19 500 000

0/сот.

В ипотеку 83 417 /мес

Описание
Код объекта: 1615427

В продаже просторный и комфортный дом для проживания семьи с детьми. Дом 237,4 кв.м с двумя гаражами ( с выходом в дом) и большой террасой. Расположен на участке 7 соток с благоустроенным двором и  садом. На двух этажах дома расположились кухня, гостиная и сан.узел - первый этаж. 4 комнаты, сан.узел на втором этаже. В одной из спален есть выход на балкон 20 кв.м ( нужно благоустроить). Все коммуникации центральные : газ, канализация, вода. У дома асфальтовая дорога. Выезд в город. Рядом есть магазины и супермаркеты, остановка транспорта.Школа и детский сад в шаговой доступности. Пешеходные зоны и парки для прогулок. .Такой дом станет отличным выбором для тех, кто ценит комфорт и уют!!Не упустите возможность стать обладателем просторного дома в живописном месте!Звоните прямо сейчас, чтобы узнать больше информации и договориться о просмотре. Поторопитесь, такие предложения быстро находят своего покупателя! ​​​​​​​Любой вид расчёта.Номер объекта: #5/1615427/3069

05-02-2026
Дом
  • Тип недвижимости дом
  • Площадь 237.4  м 2
  • Материал стен Кирпичный
  • Комнат 5
  • Этажность 2
  • Ремонт Обычный
  • Отопление Газовое
Участок
  • Площадь участка 7  сот.
  • Фасад участка 20  м.
  • Тип участка ИЖС
  • Водоснабжение Централизованный
  • Электричество Заведено
  • Канализация Центральная
  • Газ (линия) Да

Купите этот объект недвижимости в ипотеку не выходя из дома