8 903 411 24 03

Бесплатный звонок по РФ

Дом, 130 м2, 4 сот.

, Платановая ул, 166 ,

Объект на карте

8 100 000

0/сот.

В ипотеку 34 650 /мес

Описание
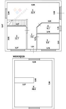
Код объекта: 1559565

Номер объекта: 1559565. ГОТОВЫЙ ДОМ!Всё важное рядом: школа в пешей доступности, детские сады, магазины, спортивные комплексы, общественный транспорт, мед. учреждения!Дополнительно мансардный этаж!Витражное остекление!​​​​​​​Загородный комфорт и в то же время близость к мегаполису - самое выгодное предложение для постоянного проживания!Возможна льготная ипотека!Ипотека с гос.поддержкой,семейная!

24-05-2026
Дом
  • Тип недвижимости дом
  • Площадь 130  м 2
  • Материал стен Кирпичный
  • Комнат 3
  • Этажность 1
  • Ремонт Предчистовая отделка
  • Отопление Электрический котел
Участок
  • Площадь участка 4  сот.
  • Тип участка ИЖС
  • Водоснабжение Скважина
  • Электричество Разведен по дому
  • Канализация Биотуалет (септик)
  • Газ (линия) Да

Купите этот объект недвижимости в ипотеку не выходя из дома