8 903 411 24 03

Бесплатный звонок по РФ

Объект продан

Дом, 100 м2, 4 сот.

, Олимпийский пр-кт, 157,

Объект на карте

6 100 000

0/сот.

В ипотеку 26 094 /мес

Описание
Код объекта: 1556735

Дом по цене квартиры!Большой участок ИЖС!Правильная посадка дома обеспечивает просторный двор!Дом сдается с качественной предчистовой отделкой!Все коммуникации заведены и разведены по дому!возможен РЕМОНТ ПОД КЛЮЧ!Возможна льготная ипотека!с удорожаниемЗвоните!Предложение ограниченно!​​​​​​​Номер объекта: #5/1556735/3069

17-12-2025
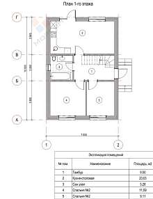
Дом
  • Тип недвижимости дом
  • Площадь 100  м 2
  • Материал стен Кирпичный
  • Комнат 4
  • Этажность 2
  • Ремонт Предчистовая отделка
  • Отопление Электрический котел
Участок
  • Площадь участка 4  сот.
  • Тип участка ИЖС
  • Водоснабжение Скважина
  • Электричество Разведен по дому
  • Канализация Биотуалет (септик)
  • Газ (линия) Да
Салихов Илья Олегович
+7 (928) 217 39 44
Или оставьте свой номер
и я Вам перезвоню

Купите этот объект недвижимости в ипотеку не выходя из дома