8 903 411 24 03

Бесплатный звонок по РФ

Гостиница/сауна, 240 м²

, Майская ул, 90

Объект на карте

20 000 000

83 3332

В ипотеку 85 556 /мес

Описание
Код объекта: 1663297

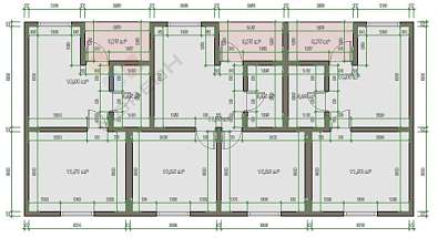
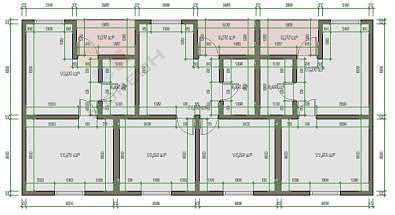
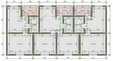
Номер объекта: 1663297. ​​​​​​​Продаётся уютная гостиница общей площадью 240.00 кв.м на участке 14 соток. Вид разрешенного использования туристическое обслуживание аренда до 2054г.В данный момент гостиница состоит из 2 домиков с 3мя отдельными входами каждый. Это 6 номеров: 2 однокомнатных номера с кухней-гостинной и санузлом площадью 29 м2 каждый, 4 двухкомнатных номера с кухней-гостинной и санузлом по 40м2 каждый. Итого 10 комнат , вместимостью 22 чел одновременно)В данный момент проведён современный ремонт, стены отделаны экологически чистым материалом - вагонкой, на полу ламинат, санузел в кафеле.  Вся необходимая мебель остаётся в помещении: двуспальные и односпальные кровати, диваны, кухонный гарнитур, столы, стулья, в санузлах - бойлеры, вся необходимая сантехника,  постельное белье, текстиль, посуда, сплитсистемы - в каждой спальне, индукционная плита, вытяжка, чайник, микроволновая печь, холодильник, стиральная машина.Площадь участка позволяет построить еще как минимум 12 номеров , столовую, бассейн, детскую/ спортивную площадку.Коммуникации:  Электричество 30кВт, вода - центральная, канализация - септик.Это идеальное сочетание цены и качества, обеспечивающее приятное проживание для всех гостей. Особенно данный вариант подойдёт для семей с детьми, благодаря удобному расположению и обстановке.Удачное месторасположение: центр набережной, 2-я линия пляжа, 5 минут пешком до моря, рядом Магнит, Мидийное место, аптеки, общепит, развлекательные и спортивные заведения, кафе.Заходите к нам и убедитесь сами в уникальной атмосфере комфортного и спокойного отдыха. Приобретайте это уникальное предложение прямо сейчас и наслаждайтесь отдыхом в уютной гостинице!

24-05-2026
Характеристики
  • Тип недвижимости Гостиница(сауна)база отдыха
  • Площадь 240  м 2
  • Этаж 1
  • Этажей в здании 1
  • Год постройки 2024
  • Отделка Обычный ремонт
  • Тип здания отдельно стоящее здание
  • Класс здания A
  • 1-я линия Нет
  • Отдельный вход Да
Участок
  • Площадь участка 14 сот.
  • Фасад участка 40 м
  • Тип участка дачное строительство (СНТ; ДНТ)
  • Вид права Аренда
Сделка
  • Тип сделки продажа
  • Есть арендатор Да
Кириленко Евгений Викторович
+7 (928) 248 03 92
Или оставьте свой номер
и я Вам перезвоню

Купите этот объект недвижимости в ипотеку не выходя из дома