8 903 411 24 03

Бесплатный звонок по РФ

200 000 /мес.

7782

Описание
Код объекта: 1662028

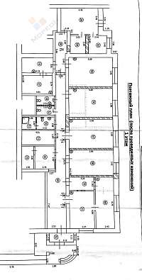
Номер объекта: 1662028. Сдается на продолжительный срок помещение 257 кв.м., в центре города Славянск - на - Кубани: - Здание включает в себя - 8 отдельных кабинетов. - Ресепшн. - Сан. узлы. - Просторный коридор. ----------------- В данный момент завершается современный, внутренний ремонт!!! ----------------- Все коммуникации центральные, индивидуальное отопление ( газ), счётчики. Мокрые точки и вытяжка в каждом кабинете. ------------------ Сдается только целиком!!! Комиссия отсутствует!!!

24-05-2026
Характеристики
  • Тип недвижимости Офисное помещение
  • Площадь 257  м 2
  • Материал стен Кирпичный
  • Этаж 1
  • Этажей в здании 5
  • Отделка Евроремонт
  • Тип здания встроенное помещение
  • Класс здания A
  • 1-я линия Нет
  • Отдельный вход Да
Сделка
  • Тип сделки аренда
  • Есть арендатор Нет

Купите этот объект недвижимости в ипотеку не выходя из дома