8 903 411 24 03

Бесплатный звонок по РФ

Торговое помещение, 470 м²

, Железнодорожная ул, 274

Объект на карте

51 500 000

109 5742

В ипотеку 220 306 /мес

Описание
Код объекта: 1661748

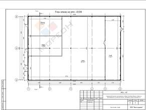
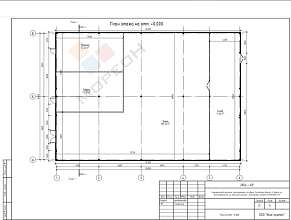
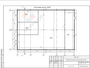
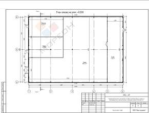
Номер объекта: 1661748. Коммерческое здание (один этаж) Площадь общая 470м2 Площадь З/У 6.3 сот. - в собственности Строится по РНС и вводится будет по АВЭ Высота потолка от 3,3-4 м Открытие магазинов - май 2025 года. Месторасположение - въезд в микрорайон, учебные заведения, общежития с высоким трафиком. Соседи - сетевые арендаторы Пятерочка и тд. Возможна поэтапная оплата до ввода в эксплуатацию. *Коммуникации центральные: Электричество 80 кВт Газ центральный Вода центральная Канализация септик В листе ожидания много претендентов !! 1)Лисичка либо аналог, договор на 5 -7 лет на рассмотрении- 200 м2 - 120.000 -150.000 2)Аптека (договор на рассмотрении от 7 лет)- 50 м2 - 65.000 3)Пекарня, локальная сеть, договор на рассмотрении 5 лет и более- 50 м2 - 65.000 4)Кофейня, локальная сеть с договором от 5 лет на рассмотрении - 100 м2 - 130.000 5)Фрукты-овощи, либо алкоголь и сигареты, локальные или федеральные сети с договором от 5 лет, в листе ожидания - 60 м2 - 78.000 + 5% индексация со второго года Итого: МАП 458.000 - 488.000 мес. Потенциал 500.000 мес. Соседние здание, угловой участок площадью 6 соток (кадастровый номер ….273 указан в презентации) с будущим на нем зданием площадью 470 м2 с потенциальным набором сетевых локальных арендаторов, технические характеристики зданий аналогичны. МАП не менее 360.000 мес. При единовременном приобретении двух объектов возможен хороший дисконт.

21-05-2026
Характеристики
  • Тип недвижимости Торговое помещение
  • Площадь 470  м 2
  • Материал стен Металоконструкции
  • Этаж 1
  • Этажей в здании 1
  • Год постройки 2024
  • Отделка Евроремонт
  • Тип здания отдельно стоящее здание
  • Класс здания A
  • 1-я линия Да
  • Отдельный вход Да
Сделка
  • Тип сделки продажа
  • Есть арендатор Да

Купите этот объект недвижимости в ипотеку не выходя из дома