8 903 411 24 03

Бесплатный звонок по РФ

Объект продан

Свободное назначение, 104 м²

, Тимофеева ул, 6

Объект на карте

2 400 000

23 0992

В ипотеку 10 267 /мес

Описание
Код объекта: 1652305

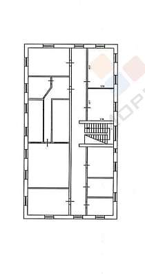
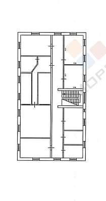
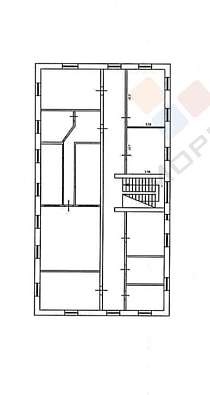
Продаются нежилые помещения, расположенные в 3-х этажном здании Администрации ст. Брюховецкая - общая площадь 103,9 м2 (6 кабинетов на 3 этаже, площадь 86,4 м2, 1 помещение в цоколе, 17,5 м2) - выполнен свежий ремонт - сданы арендаторам (МАП 30 т.р.) Продажа от собственника. Документы готовы. Просмотр по предварительной договоренности.Номер объекта: #5/1652305/3069

12-03-2026
Характеристики
  • Тип недвижимости Свободное назначение
  • Площадь 103.9  м 2
  • Материал стен Другое
  • Этаж 3
  • Этажей в здании 3
  • Отделка Офисный вариант
  • Тип здания встроенное помещение
  • Класс здания A
  • 1-я линия Да
  • Отдельный вход Да
Сделка
  • Тип сделки продажа
  • Есть арендатор Да

Купите этот объект недвижимости в ипотеку не выходя из дома