8 903 411 24 03

Бесплатный звонок по РФ

Свободное назначение, 83 м²

ФМР , Константина Образцова, 25к1

Объект на карте

26 500 000

317 7462

В ипотеку 113 361 /мес

Описание
Код объекта: 1627377

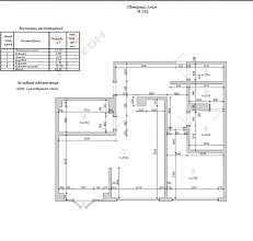
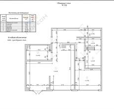
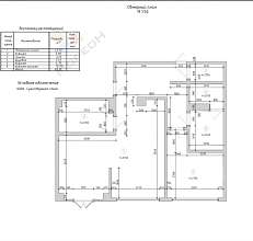
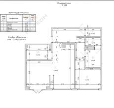
Продается помещение свободного назначения с арендатором - окупаемость: 13 лет - качественный дизайнерский ремонт - площадь: 84 м2 - мощность: 15кВТ - коммуникации: центральные - 6 мокрых точек - просторная зона ресепшен - 3 изолированных кабинета - кухня для персонала, кладовая, простирочная, 2 душевые. - большая стихийная парковка, всегда есть место. Продажа от собственника. Просмотр только по предварительной договоренности!Номер объекта: #5/1627377/3069

20-01-2026
Характеристики
  • Тип недвижимости Свободное назначение
  • Площадь 83.4  м 2
  • Материал стен Монолит
  • Этаж 1
  • Этажей в здании 16
  • Год постройки 2014
  • Отделка Евроремонт
  • Тип здания отдельно стоящее здание
  • Класс здания A
  • 1-я линия Нет
  • Отдельный вход Да
Сделка
  • Тип сделки продажа
  • Есть арендатор Да
Корнева Татьяна Васильевна
+7 (964) 933 72 97
Или оставьте свой номер
и я Вам перезвоню

Купите этот объект недвижимости в ипотеку не выходя из дома