8 903 411 24 03

Бесплатный звонок по РФ

Свободное назначение, 638 м²

ЦМР , Кузнечные Ряды ул, 28

Объект на карте

115 000 000

180 3922

В ипотеку 491 944 /мес

Описание
Код объекта: 1613475

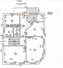
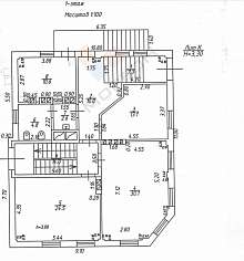
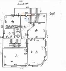
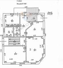
Номер объекта: 1613475. Продаётся административное пятиэтажное здание с арендаторами в центре города.Здание имеет отдельный вход. Этажей в здании пять: три основных этажа, цокольный этаж и мансардный. Два, три и четыре этажа сданы в аренду.Здание оборудовано централизованными системами водоснабжения и водоотведения. Мощность системы отопления составляет 80 кВт. Отопление и горячее водоснабжение осуществляются от собственной газовой котельной.На арендуемые помещения установлены отдельные счётчики. Для обеспечения безопасности установлены две охранные системы, действует договор с ЧОП. Также имеется пожарная сигнализация.Земельный участок, на котором расположено здание, находится в собственности.Звоните для получения более подробной информации и обсуждения условий сделки.

21-05-2026
Характеристики
  • Тип недвижимости Свободное назначение
  • Площадь 637.5  м 2
  • Материал стен Кирпичный
  • Этаж 1
  • Этажей в здании 5
  • Отделка Евроремонт
  • Тип здания торговый центр
  • 1-я линия Да
  • Отдельный вход Да
Сделка
  • Тип сделки продажа
  • Есть арендатор Да
Ставицкая Ирина Анатольевна
+7 (928) 258 34 12
Или оставьте свой номер
и я Вам перезвоню

Купите этот объект недвижимости в ипотеку не выходя из дома