8 903 411 24 03

Бесплатный звонок по РФ

Свободное назначение, 1 000 м²

ЮМР , 70-летия Октября ул, 20/3

Объект на карте

106 000 000

106 0002

В ипотеку 453 444 /мес

Описание
Код объекта: 1542241

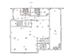
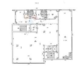
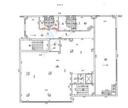
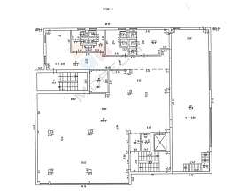
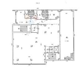
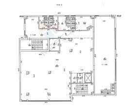
Продажа на ЮМР помещение свободного назначенияна 2м и 3-м этаже общей площадью 1100 м2отдельно стоящее здание с парковкойсвободная планировкавсе коммуникации центральныеподключенная мощность 80 кВтна первом этаже Пятерочка​​​​​​​фасад на улицу 70 лет Октябрянапротив через дорогу парковая зона КубаниНомер объекта: #5/1542241/3069

10-11-2025
Характеристики
  • Тип недвижимости Свободное назначение
  • Площадь 1000  м 2
  • Материал стен Другое
  • Этаж 2
  • Этажей в здании 3
  • Отделка Обычный ремонт
  • Тип здания отдельно стоящее здание
  • 1-я линия Нет
  • Отдельный вход Да
Участок
  • Площадь участка 4 сот.
  • Тип участка промназначения
Сделка
  • Тип сделки продажа
  • Есть арендатор Нет
Сельчанко Валентин Николаевич
+7 (928) 268 61 01
Или оставьте свой номер
и я Вам перезвоню

Купите этот объект недвижимости в ипотеку не выходя из дома