8 903 411 24 03

Бесплатный звонок по РФ

Свободное назначение, 556 м²

Панорама , Восточно-Кругликовская ул, 18

Объект на карте

834 000 /мес.

1 5002

Описание
Код объекта: 1433323

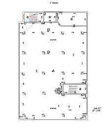
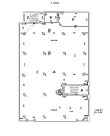
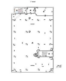
Сдаётся в долгосрочную аренду помещение свободного назначения в новом динамично развивающемся районе возле стадиона и парка Галицкого-Высокий автомобильный и пешеходный трафик-Расположение: район парка Галицкого-Площадь: 556 м2, -Этаж: второй-Высота потолков: 3,15 м-Мощность электросети: 100 кВт с возможностью увеличения-Коммуникации: центральные-Входов: 1-Парковка: свободная на 20 автомобилейВозможно использовать под, частную школу, частный детский сад, детский центр. медицинский центр, можно рассмотреть помещение под пиццерию, ресторан или общепит, витражные окна выходят на парк Галицкого.Аренда от собственникаПросмотр по предварительной договорённостиНомер объекта: #5/1433323/3069

16-03-2026
Характеристики
  • Тип недвижимости Свободное назначение
  • Площадь 556  м 2
  • Материал стен Кирпично-Монолитный
  • Этаж 2
  • Этажей в здании 3
  • Год постройки 2017
  • Отделка Евроремонт
  • Тип здания отдельно стоящее здание
  • Класс здания A
  • 1-я линия Да
  • Отдельный вход Да
Сделка
  • Тип сделки аренда
  • Есть арендатор Нет
Левкин Дмитрий Викторович
+7 (999) 461 96 85
Или оставьте свой номер
и я Вам перезвоню

Купите этот объект недвижимости в ипотеку не выходя из дома