8 903 411 24 03

Бесплатный звонок по РФ

25 189 000

0/сот.

В ипотеку 107 753 /мес

Описание
Код объекта: 1659426

ОТЛИЧНЫЙ НОВЫЙ ДОМ!КОТТЕДЖНЫЙ ПОСЕЛОК БИЗНЕС-КЛАССА!​​​​​​​Строится с соблюдением всех технологий строительства согласно ГОСТ и СНИП . Есть фото и видеофиксация этапов стройки.Двор забетонирован, забор из профлиста с воротами. Несколько машино мест перед домом во дворе.Отличная планировка!​​​​​​​Правильная посадка дома обеспечивает просторный двор!​​​​​​​​​​​​Хорошие подъездные пути! О ДОМЕ:​​​​​​​Строительство выполнено согласно ГОСТ и СНИП!​​​​​​​коммуникации ЦЕНТРАЛЬНЫЕ!​​​​​​​ГАЗ!Качественная отделка!​​​​​​Удачное локальное расположение объекта!Район активно развивается!В микрорайоне функционируют муниципальные школа и детский сад!Ресторан с видом на озеро.Своя парковая зона!Запланировано строительство большого ТЦ на территории рядом со въездом в район.В микрорайоне функционируют:• собственная котельная• собственный водозабор с артезианскими скважинами.Широкие забетонированные дороги!Зона отдыха,детские и спортивные площадки,прогулочные зоны!Полностью закрытая и охраняемая территория!ПРОДАЖА ЭТОГО ОБЪЕКТА БЕЗ КОМИССИИ СО СТОРОНЫ ПОКУПАТЕЛЯ!Пишите или звоните по любым интересующим вас вопросам!​​​​​​Рассматривается ЛЮБАЯ ФОРМА ОПЛАТЫ!​​​​​​​Поставьте этому объявлению ❤️, чтобы не потерять!Номер объекта: #5/1659426/3069

13-01-2026
Дом
  • Тип недвижимости дом
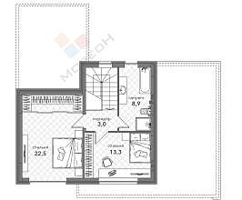
  • Площадь 157  м 2
  • Материал стен Кирпичный
  • Комнат 4
  • Этажность 2
  • Ремонт Предчистовая отделка
  • Отопление Центральное
Участок
  • Площадь участка 8  сот.
  • Тип участка ИЖС
  • Водоснабжение Централизованный
  • Электричество Разведен по дому
  • Канализация Центральная
  • Газ (линия) Да
Салихов Илья Олегович
+7 (928) 217 39 44
Или оставьте свой номер
и я Вам перезвоню

Купите этот объект недвижимости в ипотеку не выходя из дома