8 903 411 24 03

Бесплатный звонок по РФ

9 000 000

2 250 000/сот.

В ипотеку 38 500 /мес

Описание
Код объекта: 1641525

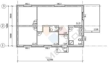
В продаже дом 100 м2 на 4 сот. ИЖС. Дом находится в тихом районе, вдали от шумных улиц и суеты города. Идеальное место для спокойной жизни и отдыха. Конструкция дома очень надежная, что обеспечивает сохранность и безопасность жильцов. Коммуникации: вода, электричество, газ - Центральные!!!!Просторная кухня позволяет комфортно проводить время за обедом с семьей или друзьями. Ванная комната оснащена современными сантехническими приборами, так что у вас не будет проблем с комфортом в повседневной жизни. У вас есть возможность самостоятельно оформить интерьер и создать уютное пространство по своему вкусу. Этот дом идеально подойдет для тех, кто ценит тишину, красоту и уют. Цена дома доступна всем, кто мечтает о своем собственном жилье. Не упустите возможность стать обладателем этого замечательного дома! Подходит под любую вид ипотек, даже Сельская!!!!По всем интересующимся вопросам и просмотром дома, звоните!!!Номер объекта: #5/1641525/3069

23-01-2026
Дом
  • Тип недвижимости дом
  • Площадь 89.4  м 2
  • Материал стен Кирпичный
  • Комнат 4
  • Этажность 1
  • Год постройки 2024
  • Ремонт Предчистовая отделка
  • Отопление Газовое
Участок
  • Площадь участка 4  сот.
  • Тип участка ИЖС
  • Водоснабжение Скважина
  • Электричество Разведен по дому
  • Канализация Биотуалет (септик)
  • Газ (линия) Да
Ли Евгений Сергеевич
+7 (928) 241 78 51
Или оставьте свой номер
и я Вам перезвоню

Купите этот объект недвижимости в ипотеку не выходя из дома